FOR SALE
物件情報物件詳細
新築!!「モダンフィールド稲穂町東1」角地!!
販売価格
3980万円
北広島市稲穂町東1丁目に新築住宅の建築開始!!
豊かな自然と充実した子育て環境!
北広島市は北海道日本ハムファイターズの本拠地となる
「エスコンフィールド北海道」の建設をきっかけに、
移住先としても熱い注目を集めています。


現在建築中♪
2026年8月ころに完成予定です。
詳しくはお問い合わせください。


エスコンフィールド と JR北広島駅
//////////////////////////////////////////////////////
北広島市稲穂町東1丁目6-4
JR北広島駅から札幌駅まで16分、新札幌まで8分、新千歳空港まで20分。
高速道路は北広島ICと輪厚スマートICがあり、新千歳空港まで30分。
通勤通学・買い物などアクセス抜群!!
///////////////////////////////////////////////////
お気軽にお問い合わせください
フリーダイヤル 0120444505
/
お問い合わせはLINEからもできます!
-
交通
JR千歳線「北広島」駅 徒歩14分 -
所在地
北海道北広島市稲穂町東1丁目6-4 -
土地面積
165.29㎡ (50.00坪) -
土地権利
所有権 -
地目
宅地 -
都市計画
市街化区域 -
用途地域
1種低層 -
建ぺい率
40% -
容積率
60% -
他の法令上の制限
北側斜線高度地区、景観計画区域、外壁後退距離1.5m、宅地造成等工事規制区域 -
接道状況
東側幅員8.0m公道に間口8.2m接道、南側幅員8.0m公道に間口13.9m接道 -
設備
上下水道、電気 -
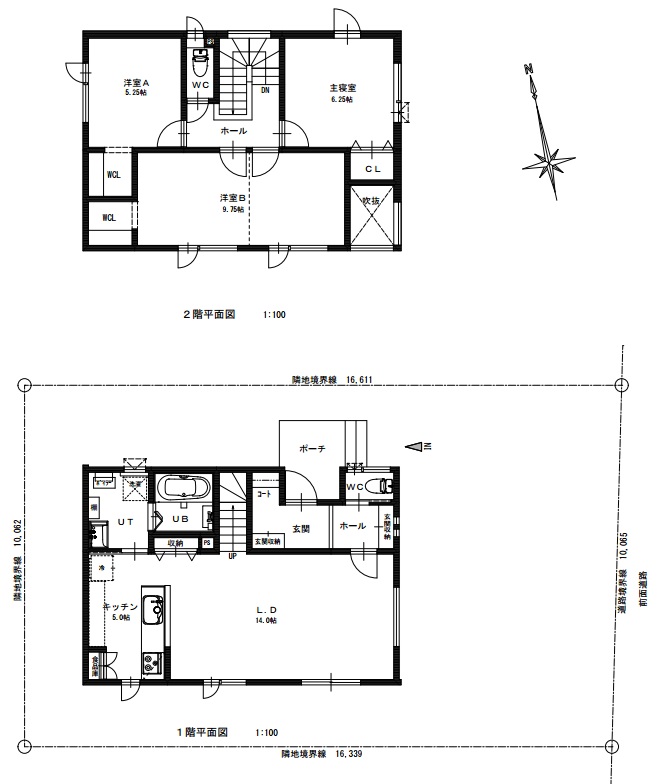
延床面積
98.25㎡(29.66坪) -
構造・階数
木造2階建て -
駐車
2台以上可能 -
完成予定
2026年8月 -
確認済証
R07A-KSC.A01331-01